Conoce más de

Nuestros Proyectos

+200 proyectos exitosos realizados.
Nuestro portafolio incluye sectores estratégicos, demostrando capacidad para entregar soluciones a medida:


Departamento (Obra)

Edificio ALAI

Ubicación: San Pedro Garza García, N.L.

Trabajo: Instalaciones hidrosanitarias, pluvial y PCI para torre de departamentos.

Fecha: 2023

Departamento (Obra)

Departamentos Alta Vista

Ubicación: Col. Altavista, Monterrey, N.L.

Trabajo: Instalaciones hidrosanitarias, pluvial, PCI y de gas para torre de departamentos.

Fecha: 2019

Departamento (Proyecto)

Departamentos Río Salinas

Ubicación: Monterrey, N.L.

Trabajo: Edificio de departamentos, ingeniería hidrosanitaria, pluvial, contra incendio.

Fecha: 2024

Departamento (Proyecto)

Departamentos Regina

Ubicación: Reynosa, Tamaulipas.

Trabajo: Edificio de departamentos, ingeniería hidrosanitaria, pluvial, contra incendios, gas LP.

Fecha: 2023

Departamento (Proyecto)

Departamentos Kehila - Cumbres

Ubicación: Monterrey, N.L.

Trabajo: Edificios de departamentos, ingeniería hidrosanitaria, pluvial, contra incendios.

Fecha: 2022

Comerciales (Obra)

Plaza Huinala

Ubicación: Apodaca, N.L.

Trabajo: Instalación hidrosanitaria, pluvial y drenaje de condensados para Plaza Comercial de dos niveles.

Fecha: 2022

Comerciales (Obra)

Plaza Monarka

Ubicación: Calzada del valle, San Pedro Garza García, N.L.

Trabajo: Instalación hidrosanitaria, pluvial y drenaje de condensados para Plaza Comercial.

Fecha: 2021

Comerciales (Obra)

Plaza Kune

Ubicación: Monterrey, N.L.

Trabajo: Instalación hidrosanitaria, pluvial, drenaje de condensados y PCI para Plaza Comercial. Instalación de equipo hidroneumático, equipo diesel de PCI, equipos cárcamos de bombeo.

Fecha: 2019

Comerciales (Proyecto)

Soriana García

Ubicación: García, N.L.

Trabajo: Tienda departamental, ingeniería hidrosanitaria, pluvial, contra incendio.

Fecha: 2022

Residenciales (Obra)

Casa del Rosario (Remodelacion)

Ubicación: Calzada El Rosario, San Pedro Garza García, N.L.

Trabajo: Instalaciones hidráulicas ViegaPEX y gas natural.

Fecha: 2023

Residenciales (Obra)

Departamento Akumal

Ubicación: Zona Residencial Chipinque, San Pedro Garza García, N.L.

Trabajo: Instalación de red hidráulica en acero inoxidable para departamento de lujo, red de ventila colgateada e instalación de red de gas en cobre soldable tipo l.

Fecha: 2024

Residenciales (Proyecto)

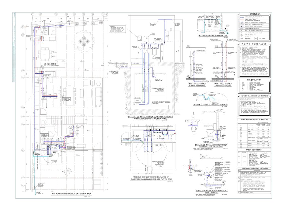
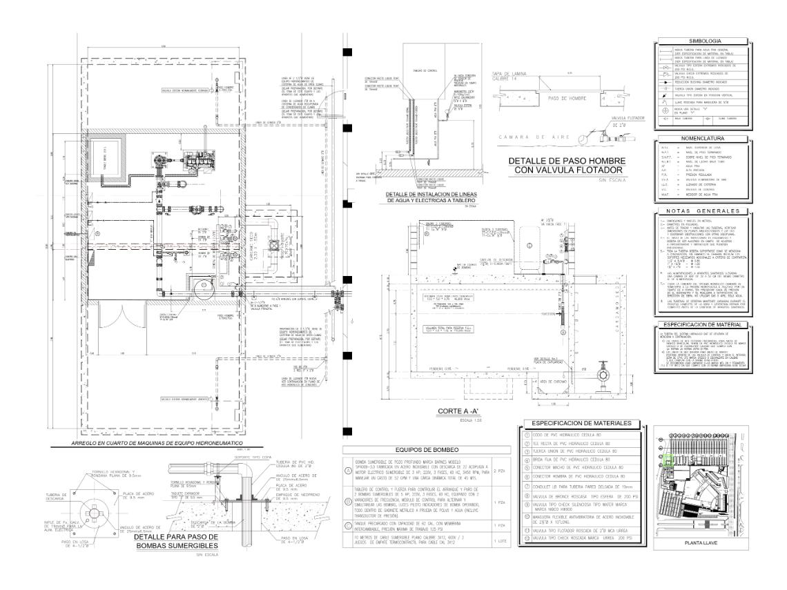
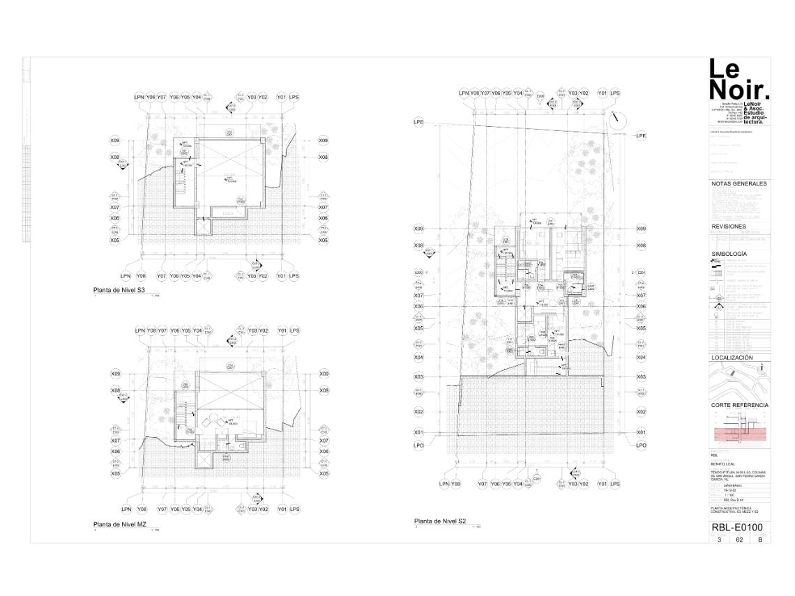
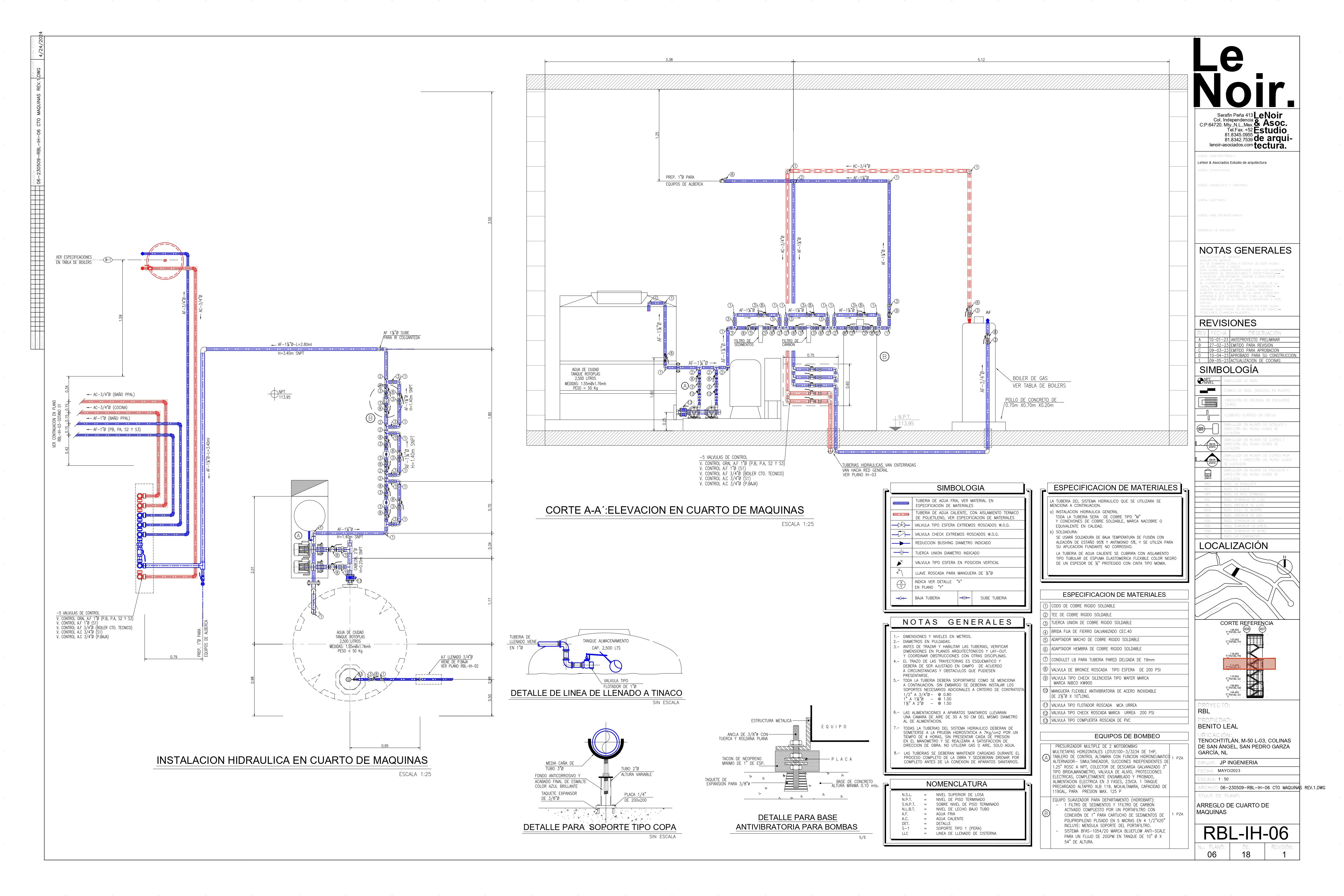
Casa RBL

Ubicación: San Pedro Garza García, N.L.

Trabajo: Residencia, ingeniería hidrosanitaria, pluvial, gas natural.

Fecha: 2022

Residenciales (Proyecto)

Casa RLH

Ubicación: Monterrey, N.L.

Trabajo: Residencia, ingeniería hidrosanitaria, pluvial, gas LP.

Fecha: 2023

Residenciales (Proyecto)

Casa RDI

Ubicación: Monterrey, N.L.

Trabajo: Residencia, ingeniería hidrosanitaria, pluvial, gas LP.

Fecha: 2023

Residenciales (Proyecto)

Casa Yerbaniz

Ubicación: Santiago, N.L.

Trabajo: Casa de campo, ingeniería hidrosanitaria, pluvial, gas LP.

Fecha: 2022

Residenciales (Proyecto)

Casa Beca

Ubicación: San Pedro Garza García, N.L.

Trabajo: Residencia nivel alta, ingeniería hidrosanitaria, pluvial, gas LP.

Fecha: 2022

Naves Industriales (Obra)

Proximity Parks Monterrey Centro

Ubicación: Monterrey, N.L.

Trabajo: Trabajos de instalaciones hidrosanitarias, pluviales y sistema de protección contra incendios.

Fecha:

Naves Industriales (Obra)

Proximity Parks Iztapalapa

Ubicación: Iztapalapa, CDMX.

Trabajo: Trabajos de instalaciones hidrosanitarias y pluviales.

Fecha:

Naves Industriales (Obra)

Proximity Parks Coyoacan

Ubicación: Coyoacan, CDMX.

Trabajo: Trabajos de instalaciones hidrosanitarias y pluviales.

Fecha:

Naves Industriales (Obra)

Proximity Parks Del Valle

Ubicación: Col. Del Valle, CDMX.

Trabajo: Instalación hidrosanitaria y pluvial para nave industrial. Instalación de equipo hidroneumático y equipos de bombeos para cárcamos pluviales.

Fecha: 2023

Naves Industriales (Proyecto)

Proximity Parks Lomas Verdes

Ubicación: Naucalpan, Estado de México.

Trabajo: Instalación hidrosanitaria, pluvial y de protección contra incendios para nave industrial. Instalación de equipo hidroneumático, equipo diesel, PCI y equipos de bombeos para cárcamos pluviales.

Fecha:

Naves Industriales (Proyecto)

Bodega de medicamentos IMSS

Ubicación: Monterrey, N.L.

Trabajo: Ingeniería de instalación hidrosanitaria, pluvial y contra incendio para bodega de medicamentos.

Fecha: 2022

Institucionales (Obra)

Comedor Oficinas Soriana

Ubicación: Cumbres, Monterrey, N.L.

Trabajo: Instalación hidrosanitarias para remodelación baños de comedor coorporativo e instalación de gas para alimentació de plancha, instalación de red de dren de condensados en comedor coorporativo.

Fecha: 2023

Institucionales (Obra)

Escuela THM

Ubicación: Valle Alto, Monterrey, N.L.

Trabajo: Instalación hidráulica para red exterior alimentadora a edificios principales, e instalación de equipo hidroneumático y tanques cisternas.

Fecha: 2020

Institucionales (Obra)

Cocina y comedor KEMMET

Ubicación: Col. Rancho Viejo, Monterrey, N.L.

Trabajo: Instalaciones hidrosanitarias y de gas para la remodelación del comedor industrial de la Planta Kemmet.

Fecha: 2023

Institucionales (Obra)

ENGSTONE

Ubicación: Parque Industrial Avante Aqropuerto, Apodaca, N.L.

Trabajo: Instalación de equipo hidronumático, tuberías y conexiones para cabezales de succión y descarga a conectar a red principal de nave industrial.

Fecha: 2023

Institucionales (Obra)

ESSENTRA

Ubicación:

Trabajo: Equipos de bombeo.

Fecha: 2024

Institucionales (Obra)

PIMSA

Ubicación: Apodaca, N.L.

Trabajo: Instalación de equipo hidroneumático, tuberías y conexiones para cabezales de succión y descarga a conectar a red principal de nave industrial.

Fecha: 2023

Institucionales (Proyecto)

Hotel Mérida

Ubicación: Mérida, Yucatán.

Trabajo: Complejo turístico con departamentos, ingeniería hidrosanitaria, pluvial, contra incendios.

Fecha: 2023

Institucionales (Proyecto)

Cafeteria escuela THM

Ubicación: Monterrey, N.L.

Trabajo: Proyecto institucional de ingeniería hidrosanitaria, pluvial.

Fecha: 2021

Institucionales (Obra)

CHIREY COYOACAN

Ubicación: Coyoacan, CDMX.

Trabajo: Trabajos de instalaciones hidrosanitarias.

Fecha: 2022

Institucionales (Proyecto)

IKON

Ubicación: San Pedro Garza García, N.L.

Trabajo: Edificio de usos mixtos - se desarrolló la ingeniería hidrosanitaria, pluvial y sistema de protección contra incendios.

Fecha: 2018

Institucionales (Proyecto)

Viñedo Ferriño

Ubicación: Cuatro Ciénegas, Coahuila.

Trabajo: Giro turístico y fabricación de elaboración de vinos - ingeniería hidrosanitaria, pluvial, gas LP.

Fecha:

Comerciales (Obra)

Plaza Rocallosos

Ubicación: San Pedro Garza García, N.L.

Trabajo: Instalaciones hidráulicas, sanitarias, pluviales, contra incendio.

Fecha: 2012-2013

Comerciales (Obra)

Vita Plaza

Ubicación: San Pedro Garza García, N.L.

Trabajo: Ingeniería y obra hidrosanitaria, drenajes pluciales subterráneos, protección contra incendio.

Fecha: 2012

Tu proyecto

con experiencia, calidad y confianza

Más de 200 proyectos entregados.
Nuestra referencia es la experiencia.

Contáctanos

Tu proyecto es nuestra prioridad.
Estamos para ayudarte.




MCJ Ingeniería © 2025
Nuevo León, México